Loop

$ 3160/month

Apartment for Rent
1 Bedroom

1 Bedroom

1.0 Bathroom

Furn or Unfurn Rental

Description

Looking for someone to take over our lease in Chicago South Loop as were moving out 6/1. Expires 8/14 (so you could renew there after). Sublease will be contracted through the building. Rent $3,000 per month / utilities + internet ~$100 per month. Unfurnished. Message for details!

Luxury building - Arrive Michigan Avenue.
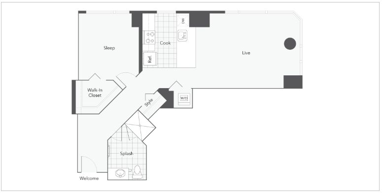
Floor plan is 1B-5 on website. https://arrivemichiganavenue.com/
Building amenities: Gym/Sauna/Steam Room/Cold Plunge/Rooftop Pool/Grill Deck/Game Lounge/Party Room/Rentable Group Kitchen/Garden Room/Rooftop/Doorman/Locking Bike Room (included in rent).
Attached secured covered parking garage has spaces for $340 monthly.
2 min walk to groceries, 3 min walk to CTA, 5 min walk to Metra, on multiple bus routes, many gyms and casual dining / takeout restaurants in neighborhood.
20 min walk or short CTA/bus ride to the Loop
Overlooks Grant Park and Bears stadium

Property Details

Rental
Listing ID 4776817
Apartment for Rent
Furnished or Unfurnished Rental
1 Bedroom, 1.0 Bathroom
Total Sq ft: 838
Rent
$ 3160/month
1 Month Security Deposit
Location
, ,
Michigan Avenue
Lease
Start: 06/01/2026 (flexible)
Lease Term: Month to Month
Renew: Yes
Summer: Yes 
More Rentals
Rentals from this Sublease

Amenities

  • Parking
  • High Speed internet
  • Pets OK
  • acAir conditioning
  • Credit AppCredit Application
  • Doorman
  • elevatorElevator
  • laundryLaundry in building
Not Included
  • Cable
  • Handicapped access
  • Smoker OK
  • Utilities included
  • Broker fee

Reviews